Reliable Solutions. Proven Results
Your Partner for Land Survey CAD Drafting
At Cadra Solutions, we provide accurate, reliable, and cost-effective Land Surveying CAD Drafting Services for surveyors, engineers, and mapping companies across the world.
Reliability
Grow Your Survey Business With Confidence
Let us handle your drafting while you focus on fieldwork and clients.
512+
Successfully Project Finished.
5+
Years of experience with proud
900+
Revenue in 2017 investment
1000+
Colleagues & counting more daily
Accuracy
Quality Services

ALTA/NSPS Survey Drafting
Global-standard ALTA/NSPS survey drafting with high accuracy, including boundaries, improvements, utilities, and easements.

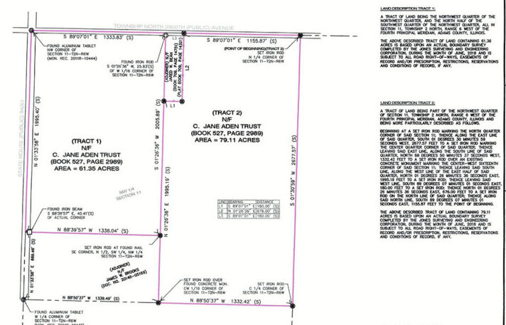
Boundary Survey Drafting
Precise property boundary drafting using local land records, deeds, plats, legal descriptions, and field data.

Topographic Survey Drafting
Comprehensive topo maps including contours, levels, site features, ground details, vegetation, and utilities.

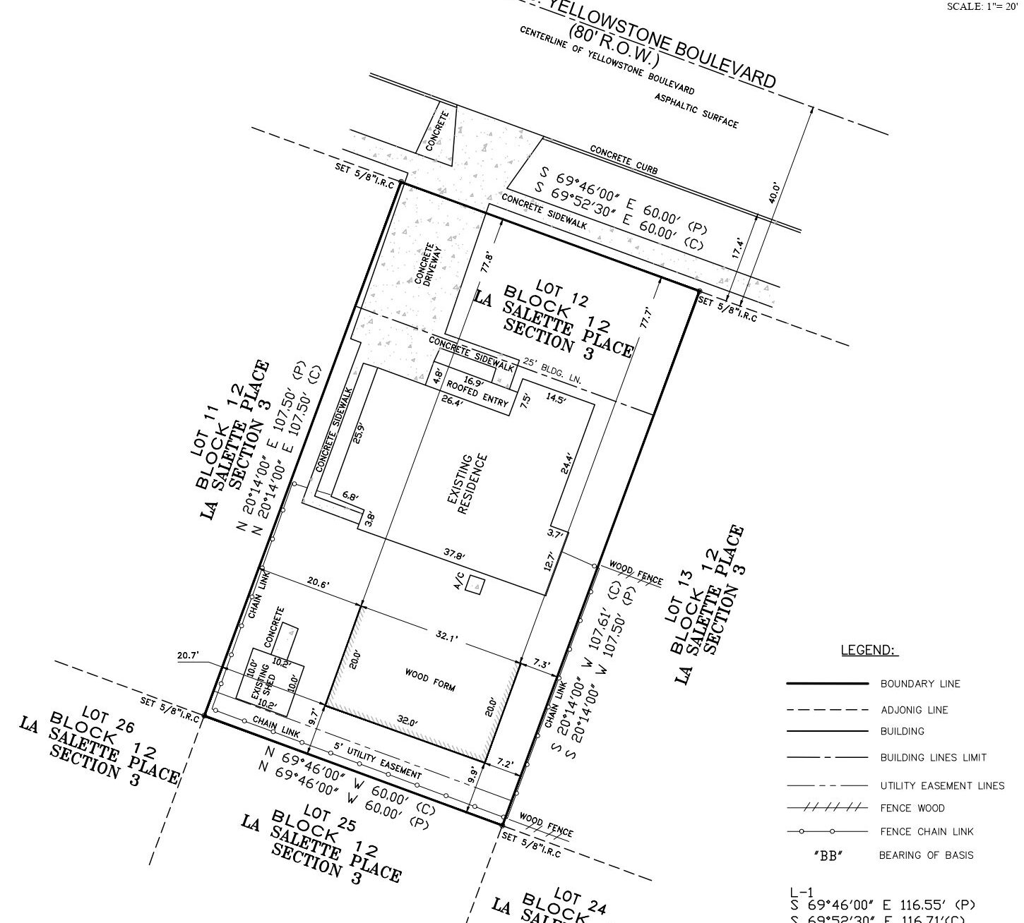
Residential / Mortgage Survey Drafting
Fast and affordable drafting for residential properties, mortgage assessments, and plot plans.

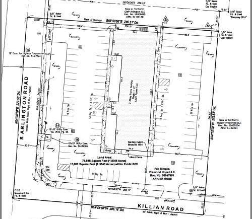
Lot & Block / Subdivision Drafting
Drafting services for subdivision layouts with roads, plots, block boundaries, and area calculations.

Tree & Utility Surveys
Tree location plans, canopy details, DBH, overhead/underground utilities, and site asset mapping.

Construction Form & Foundation Surveys
Construction-ready drafting for layout, forms, grids, and foundation positions.

PDF to CAD / Scan to CAD
Clean, editable CAD conversion from scanned documents, images, or PDFs.

Legal Description / Deed to CAD
Accurate plotting of property legal descriptions into CAD with closure verification.

As-Surveyed / As-Built Drawings
Detailed drafting for completed works including coordinates, measurements, and structural elements.

Standard Template & Layer Work
We strictly follow your company’s layering, symbols, linetypes, text heights, and title blocks.

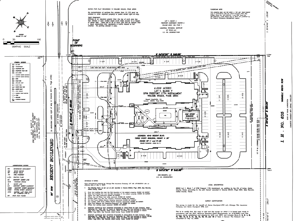
TABC Survey
Accurate TABC (Title, Area, Boundary & Contour) survey drafting delivering clear property boundaries, land area, contours, and site features—prepared to industry standards for planning and development.
Precision
Looking for Accurate CAD Drafting?
Get high-quality survey drawings delivered on time, every time.
We Follow Best Practices
Every drawing we deliver is created using standardized survey drafting methods and global CAD conventions.
Precision
Accurate & Precise Land Surveying Services With The Highest Quality.
From field data to final deliverables, we maintain strict quality checks to ensure complete accuracy and professional results.
Why Choose Us?
Premium Quality Drafting
We deliver precise, industry-standard CAD drawings that maintain accuracy and clarity for every project.
Cost-Effective Solutions
Outsource with confidence and reduce overhead costs while keeping quality uncompromised.
Fast Turnaround Times
Your deadlines matter. We ensure quick, reliable delivery without sacrificing precision.
Free Trial – Up to 8 Hours
Experience our quality firsthand with a no-obligation trial project to test our drafting expertise.
Specialized Land Surveying Expertise
From boundary surveys to topographic plans, we understand surveyor requirements and draft with absolute accuracy.
Confidentiality & Security
All project files, client data, and survey information are handled with strict confidentiality and secured workflows.
Request a Quote
Ready to Work Together? Draft a project with us!
Learn More From
Frequently Asked Questions
Simply share your project files (PDF, hand sketch, field notes, DWG). We review them and begin drafting as per your requirements.
We primarily use AutoCAD, Civil 3D, and other professional CAD tools to ensure accuracy and compatibility.
Yes. New clients get a Free Trial of up to 8 hours to experience our quality before committing long-term.
We offer hourly, per-sheet, and project-based pricing. Rates are flexible depending on the workload and complexity.
Yes. Many clients outsource their complete CAD workload to us. We act as a reliable remote drafting partner for continuous projects.
